Modułowe domy prefabrykowane Projekt Jasny - ECOLOGIQ

Modułowe domy prefabrykowane Jasny

161,6 m² Salon + 2 pokoje Przestronny taras

Projekt Jasny

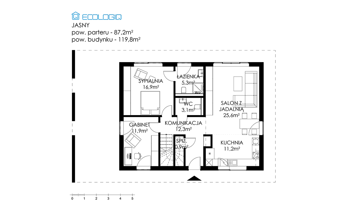
Interesujący projekt nowoczesnego, parterowego domu prefabrykowanego z nadbudówką zaprojektowanego dla jednego z naszych klientów. Na parterze budynku przewidziano: przestronny salon z kuchnią i jadalnią, łazienkę, biuro oraz pomieszczenie techniczne. Na poddaszu zostały umiejscowione: dwie sypialnie, łazienka oraz garderoba. Zastosowana forma architektoniczna pozwoliła na wygenerowanie przestronnego tarasu na piętrze oraz wydzielenie jednego miejsca postojowego dla samochodu. Wybierając nasze ekologiczne domy z prefabrykatów chronisz środowisko naturalne.

Powierzchnia

161,6 m²

Działka

m

Wysokość

8,56 m

Kąt nach. dachu

40 st.

Powierzchnia dachu

181 m²

RzutyI elewacje

Projekty Podobne

Tradycyjny

pow. 150,6 m²
Salon + 4 pokoje
Garaż w bryle budynku

Projekt Rodzinny

pow. 144,0 m²
2 niezależne lokale
Poddasze użytkowe

Estetyczny

pow. 105 m²
Salon + 3 pokoje
Oryginalne przeszklenia

Formularz kontaktowy