Modułowe domy prefabrykowane Projekt Osobliwy - ECOLOGIQ

Modułowe domy prefabrykowane Osobliwy

166 m² Salon + 4 pokoje Oryginalne przeszklenia wielkoformatowe

Projekt Osobliwy

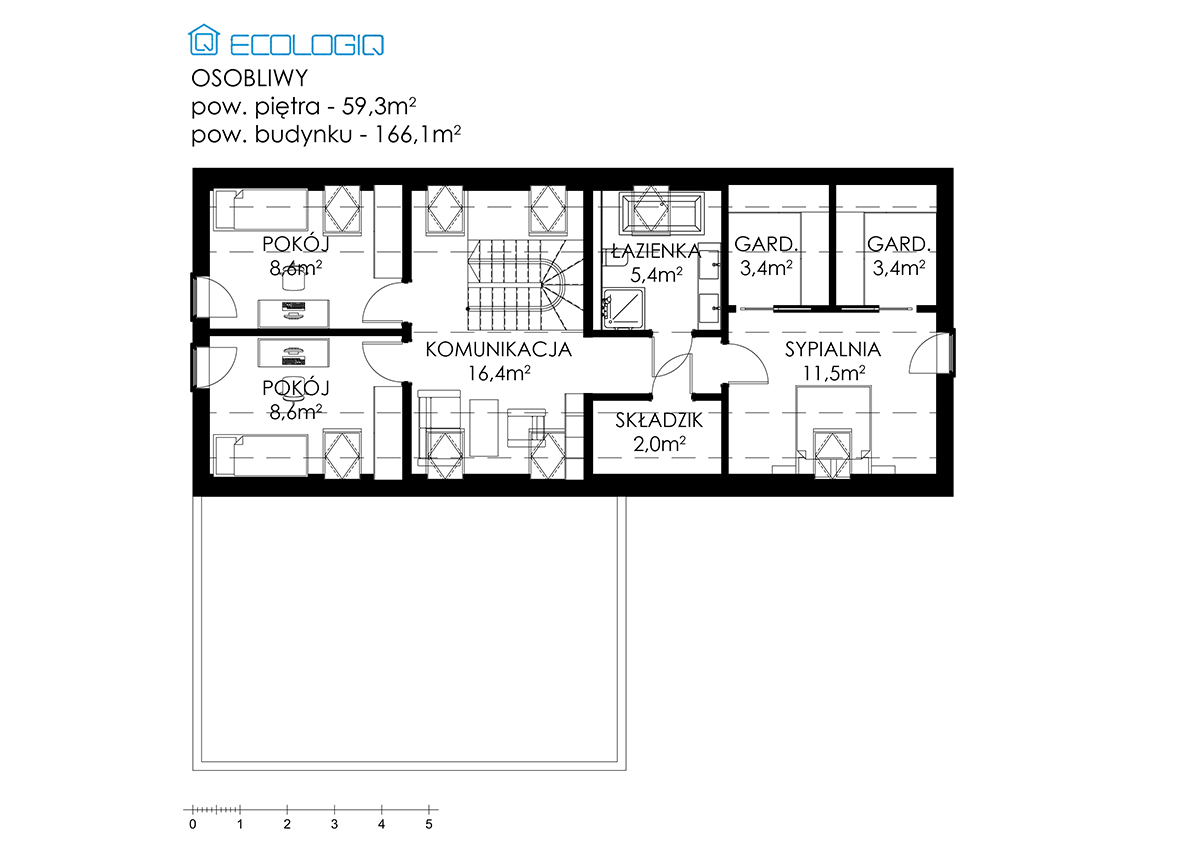
Projekt koncepcyjny energooszczędnego domu prefabrykowanego dla jednego z naszych klientów. Na parterze zlokalizowane zostały: przestronny salon z jadalnią i otwartą kuchnią, pokój gościnny, łazienka, spiżarnia oraz pomieszczenie techniczne. Na poddaszu mieszczą się: trzy sypialnie, garderoba, łazienka oraz strych. Zastosowana forma architektoniczna wygenerowała przestrzenny taras na piętrze, miejsce postojowe dla samochodu oraz oryginalnie przeszklony salon. Wybierając nasze ekologiczne domy prefabrykowane chronisz środowisko naturalne.

Powierzchnia użytkowa

166,1 m²

Wysokość kalenicy

9m

Kąt nach. dachu

40 st.

Garaż

1 - 22,5m²

RzutyI elewacje

Projekty Podobne

Estetyczny

pow. 105 m²
Salon + 3 pokoje
Oryginalne przeszklenia

Komfortowy

pow. 139,7 m²
Salon + 4 pokoje
Poddasze użytkowe

Ustronny

pow. 153,8 m²
Salon + 4 pokoje
Przestronny taras

Formularz kontaktowy