Modułowe domy prefabrykowane Projekt Otwarty - ECOLOGIQ

Modułowe domy prefabrykowane Otwarty

293,1 m² Salon + 4 pokoje Część dzienna i nocna

Projekt Otwarty

Nowoczesny projekt w standardzie energooszczędnego domu prefabrykowanego składający się z dwóch brył nawiązujących do formy nowoczesnej stodoły. Obie bryły z dwuspadowym dachem pokrytym blachą połączone zostały łącznikiem.

a parterze budynku zlokalizowaliśmy dwie części – dzienną i nocną, które łączy wspólna przestrzeń korytarzowa w postaci nowoczesnego holu. W strefie dziennej znajdują się: przestronny salon z otwartym, dużym przeszkleniem, kuchnia i jadalnia z antresolą na piętrze, łazienka oraz pomieszczenie techniczne. W strefie nocnej (druga bryła budynku) mieści dwustanowiskowy garaż, garderobę, kotłownię oraz korytarz prowadzący do gabinetu, pralni, dużej łazienki i sypialni z garderobą.

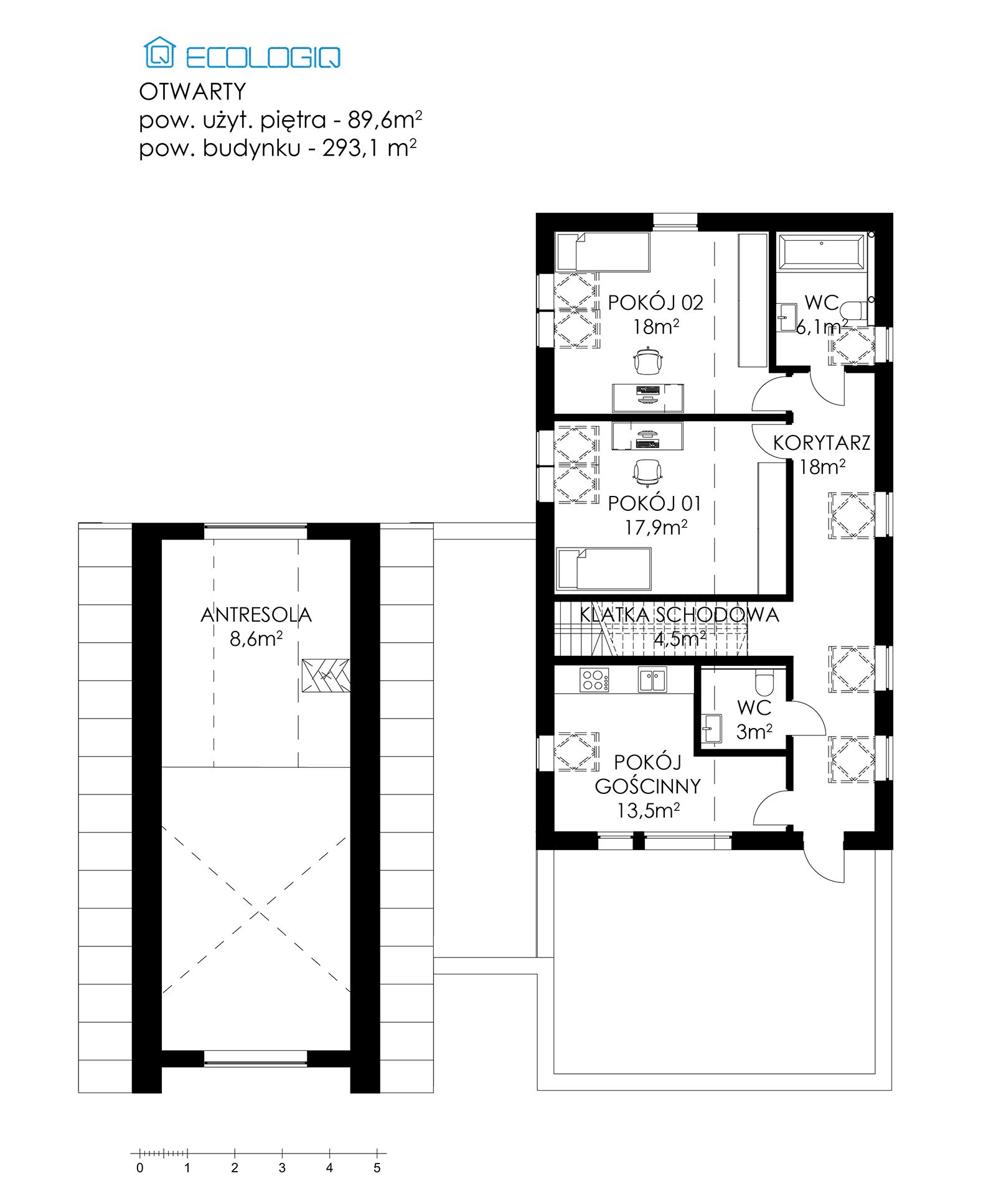
Na piętrze budynku przewidzieliśmy dwa pokoje, pokój gościnny oraz łazienkę. Wszystkie pomieszczenia zostały połączone korytarzem posiadającym wyjście na taras nad garażem.

Projekt Otwarty wyróżnia się ciekawym połączeniem nowoczesnej i rustykalnej stylistyki, a zastosowanie nowoczesnych rozwiązań takich, jak ekologiczna izolacja z włókna drzewnego, czy system wentylacji mechanicznej z rekuperacją pozwalają osiągnąć wyjątkowo niskie koszty użytkowania.

Wybierając nasze energooszczędne domy z prefabrykatów chronisz środowisko naturalne.

Powierzchnia użytkowa

293,1 m²

Działka

25,46 x 26,79 m

25,46 x 26,79 m

7,88 m

Kąt nach. dachu

35º

Garaż

2

RzutyI elewacje

Projekty Podobne

Komfortowy

pow. 139,7 m²
Salon + 4 pokoje
Poddasze użytkowe

Tradycyjny

pow. 150,6 m²
Salon + 4 pokoje
Garaż w bryle budynku

Wdzięczny

pow. 106,6 m²
3 pokoje + kuchnia
Styl nowoczesnej stodoły

Formularz kontaktowy