Modułowe domy prefabrykowane Projekt Atypowy - ECOLOGIQ

Modułowe domy prefabrykowane Atypowy

197,1 m² Salon + 4 pokoje Oryginalne przeszklenia wielkoformatowe

Projekt Atypowy

Niepowtarzalny projekt przestronnego, nowoczesnego domu prefabrykowanego w stylu nowoczesnej stodoły z dwuspadowym dachem pokrytym blachą oraz piętrem ze strefą pracy i relaksu.

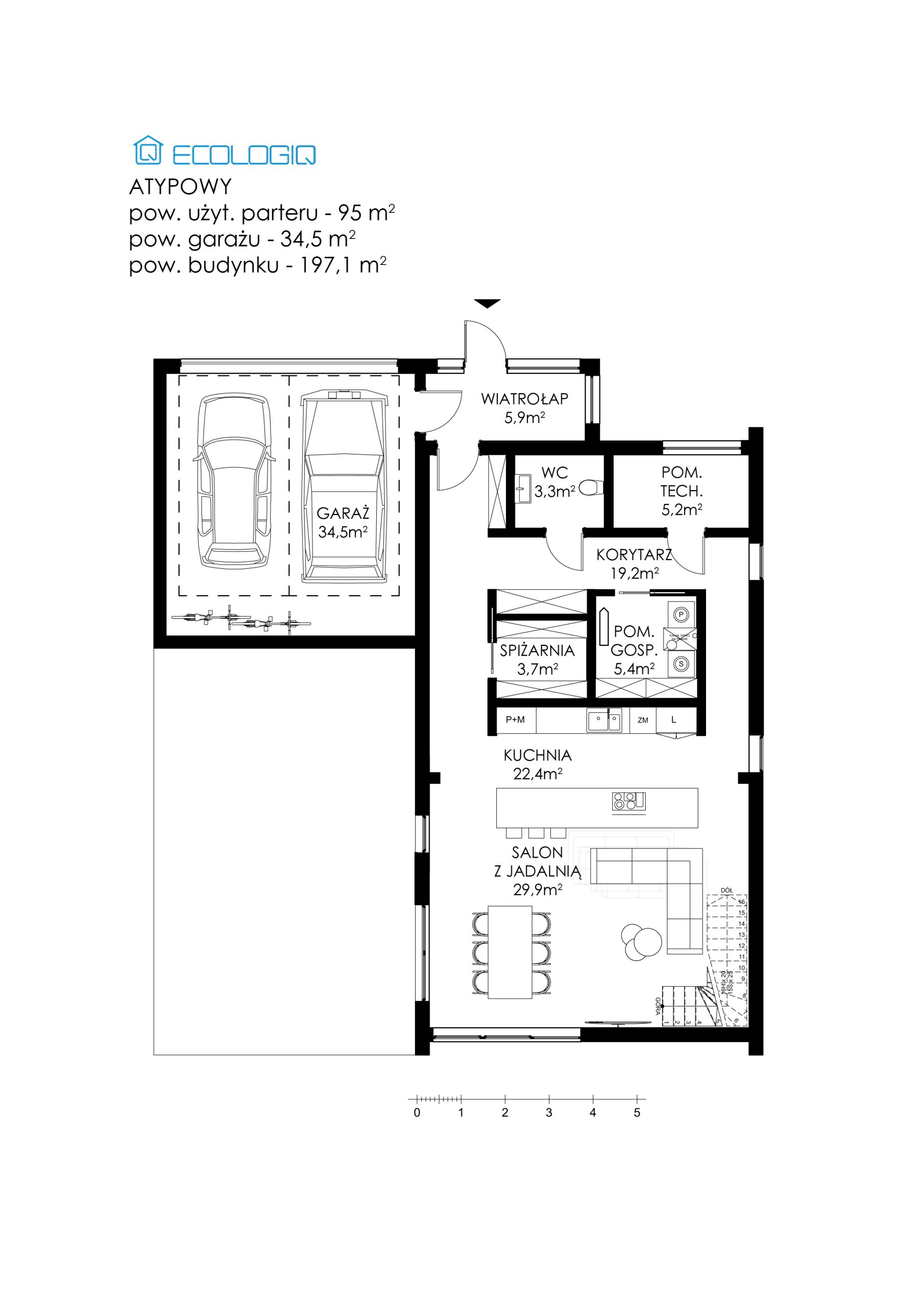
Na parterze budynku zostały zlokalizowane: oryginalnie przeszklony salon, jadalnia z otwartą kuchnią, wiatrołap, łazienka, spiżarnia, pomieszczenia gospodarcze i techniczne oraz dwustanowiskowy garaż. Na piętrze znajdują się: biblioteka, pracownia dla dwóch osób, dwie duże sypialnie w tym jedna z garderobą i łazienką.

Projekt Atypowy to nowoczesny dom prefabrykowany posiadający przeszklenia wielkoformatowe w strefie dziennej, które zapewniają wyjątkowo dobre naświetlenie pomieszczeń.

Wybierając nasze ekologiczne domy z prefabrykatów chronisz środowisko naturalne.

Powierzchnia użytkowa

197,1 m²

Działka

20,84 m x 23,81 m

Wysokość

7,78 m

Kąt nach. dachu

35º

Garaż

2

RzutyI elewacje

Projekty Podobne

Estetyczny

pow. 105 m²
Salon + 3 pokoje
Oryginalne przeszklenia

Komfortowy

pow. 139,7 m²
Salon + 4 pokoje
Poddasze użytkowe

Jasny

pow. 161,6 m²
Salon + 2 pokoje
Przestronny taras

Formularz kontaktowy