Modułowe domy prefabrykowane Projekt Szlachetny - ECOLOGIQ

Modułowe domy prefabrykowane Szlachetny

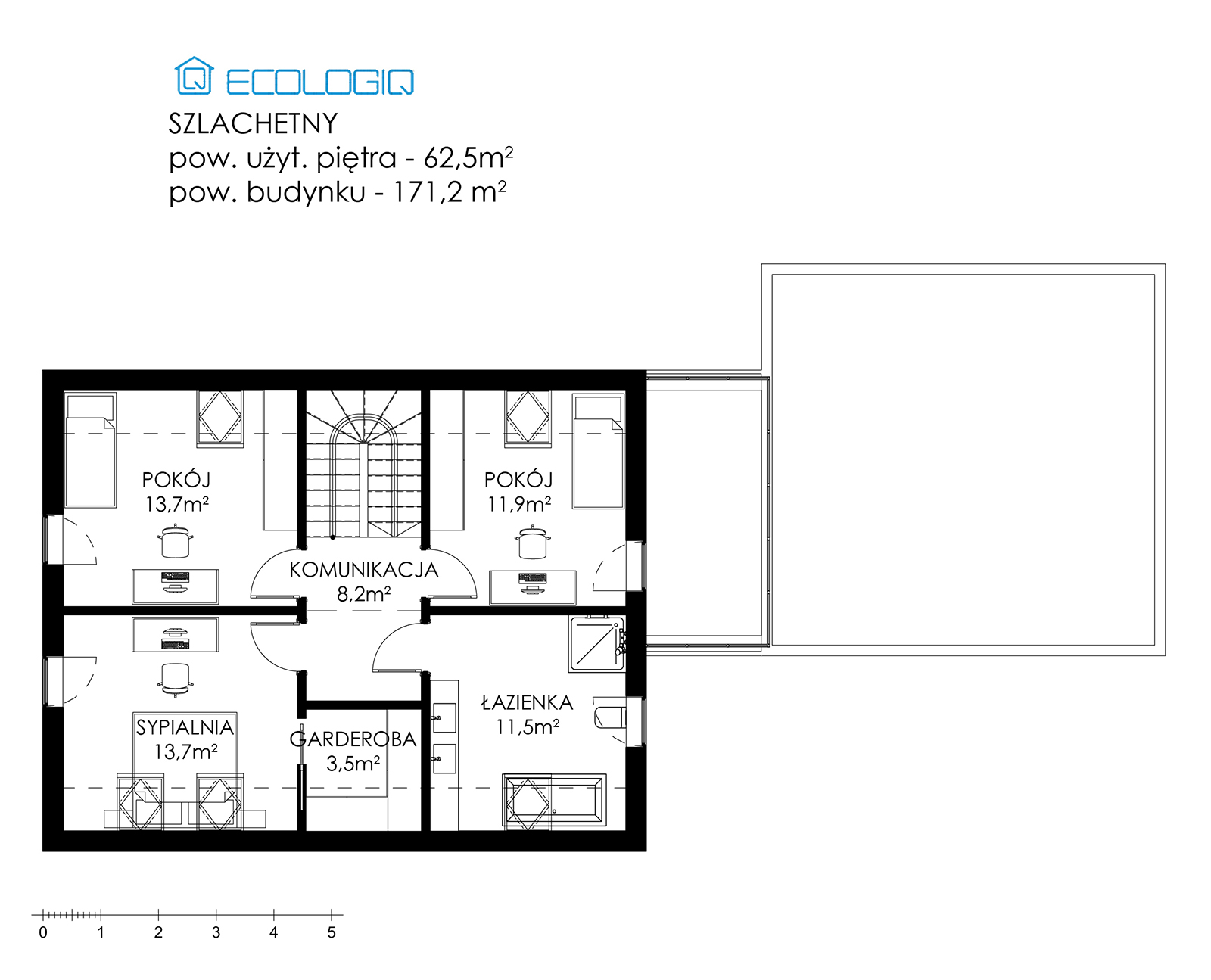
171,2 m² Salon + 3 pokoje Styl nowoczesnej stodoły

Projekt Szlachetny

Unikalny projekt domu prefabrykowanego został wykonany w nawiązaniu do popularnego trendu „nowoczesnej i ekologicznej stodoły”. Prosta bryła przekłada się wprost na nieskomplikowany układ funkcjonalny. Na parterze znajdziemy przestronny pokój dzienny z jadalnią, kuchnię, spiżarnię, łazienkę oraz pomieszczenie techniczne. Na piętrze, do dyspozycji użytkowników zostały przewidziane: sypialnia główna z garderobą, pozostałe dwie sypialnie i łazienka. Ciekawym rozwiązaniem jest możliwość etapowania budowy opisywanego domu z prefabrykatów. W pierwszej kolejności, bez uszczerbku na estetyce czy funkcjonalności, można wykonać budynek główny, natomiast nawet po kilku latach dobudować garaż.

Wybierając nasze ekologiczne domy prefabrykowane chronisz środowisko naturalne.

Powierzchnia użytkowa

171,2 m²

Działka

27,46 x 18,19 m

Wysokość

8,96 m

Kąt nach. dachu

45 st.

RzutyI elewacje

Projekty Podobne

Otwarty

pow. 293,1 m²
Salon + 4 pokoje
Część dzienna i nocna

Estetyczny

pow. 105 m²
Salon + 3 pokoje
Oryginalne przeszklenia

Jasny

pow. 161,6 m²
Salon + 2 pokoje
Przestronny taras

Formularz kontaktowy